Residencial

PONZANO, LA ZONA DE MODA EN MADRID

Si lo que buscas es vivir en el centro de Madrid rodeado de los restaurantes más sugerentes y sumergirte en un mar de cultura, entonces este edificio de la calle Ponzano está pensado para ti.

En este barrio podrás disfrutar de un sinfín de planes para cada día de la semana, incluyendo participar en una gran variedad de masterclass gastronómicas, celebrar las fiestas del Carmen o salir de noche a bailar a alguna de las famosas salas que se encuentran a su alrededor, pero a la vez puedes disfrutas de la tranquilidad del Museo Sorolla o del Museo Geominero y descansar en el Parque de Santander.


Ponzaning, el ambiente más auténtico y castizo de Madrid

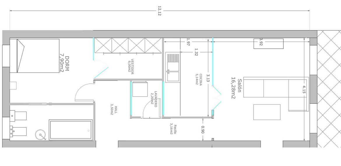
Este piso, al igual que el barrio, es el resultado de una maravillosa y variada mezcla de estilos: por una parte líneas clásicas pertenecientes a la herencia arquitectónica de la aristocracia, solado de baldosas hidráulicas o la nueva tendencia del alicatado estilo metro, y por otra parte líneas modernas como las amplias entradas sin puertas o las paredes mayoritariamente acristaladas.

El confort es lo que prima en esta construcción, por lo que todos los pisos están diseñados con un estilo diáfano compuesto por un amplio salón muy luminoso que te permitirá ahorrar en el consumo eléctrico, dos cuartos de baño y un amplio vestidor.

Se trata de un piso para disfrutar de la calidad de vida a escasos minutos del centro de Madrid.