Residencial

LUXURY VILLA: MADRID

Lujo, máxima seguridad y las vistas más impresionantes de la sierra, son las características más destacables que definen a Luxury Villa Madrid en Ciudalcampo. Una zona residencial que se ha convertido en una de las urbanizaciones más valoradas de la ciudad, donde viven personajes públicos y altos ejecutivos, que la eligen por su privacidad y entorno.

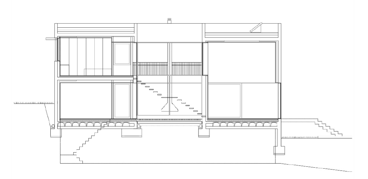
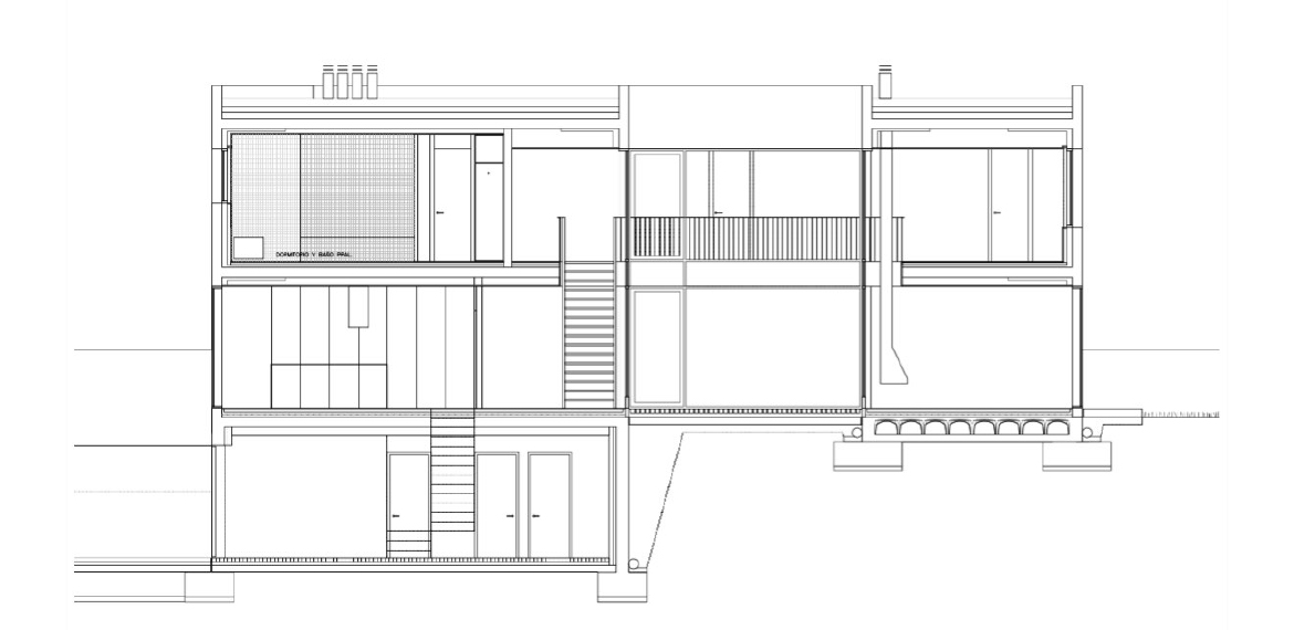
Luxury Villa Madrid es un chalet de 600 metros, levantado en una parcela privada de 2.620 m2 con jardín y piscina climatizada, ubicada en un entorno privilegiado, rodeado de zonas verdes con fácil acceso a colegios, hospitales, centros comerciales y supermercados, donde se disfruta de una vida tranquila con la ventaja de tener todo a mano: intimidad y vida social.


ZONA RESIDENCIAL A 15 MIN. DEL CENTRO DE MADRID.

Luxury Villa Madrid está diseñada para disfrutar. Se trata de una vivienda distribuida en 5 dormitorios en suite más uno de servicio, un despacho y un gran espacio destinado al área social (salón/comedor) de 60 metros cuadrados a doble altura. Cocina totalmente amueblada y equipada con electrodomésticos de alta gama, suelo radiante frío/calor, geotermia y garaje para cuatro coches.

En Luxury Villa Madrid se cuida hasta el más mínimo detalle. La casa consta de una piscina climatizada, chimenea en el salón, máxima seguridad en la urbanización y las vistas más espectaculares de Madrid. Bienvenido a la tranquilidad de tenerlo todo. Bienvenido a Luxury Villa Madrid.